HOME > BLOG > KAWABATA channel > Property Search > RENT > A HAMLETという集落再生プロジェクト。

A HAMLETという集落再生プロジェクト。

募集中RENTシングル住 居オフィスショップアトリエ京 都NEW

【集落再生プロジェクト】
亀岡市のとある集落を再生していく仲間を募集しています。

※2025年12月13日現在、13-17商談中。

2022年2月から始まった、とある集落にある30棟ほどの長屋のうち、空いていた13棟を2棟ずつリノベーションして、入居が決まれば次の2棟をリノベしていき、集落を再生しようというプロジェクト。

A HAMLETとは、とある集落という意味。昔はどこにでもあったけど、今は絶滅危惧種の消えゆきそうな集落を未来に残したい。ここがうまくいけば、全国に波及していく動きになると信じてる。

二期工事まではうまく行っていたが、様々な理由でリノベ済みの四棟のうち三組が退去される事になり、窮地に立たされる事になる。

そこで、僕らはひとつの長屋を自ら借りて拠点にする事にし、野良の共同体「ノノノ」という活動を始めた。そこで「野良のラジオ」を収録したり、「野良の学校」という講座を開講したり、「野良の滞在」というアーティストインレジデンスをしたりと活動している。

そこで気づいたわけだ。本来、みんなビジネスとして場所を借りて、商いや仕事をして利益を生み出す。自分自身もそう思っていたが、それ以外にも場所を借りる効能、意味はあるんじゃないか?と。

自分の本業で自分の目指す場所を見据えて歩いて、正しい努力をすれば、きっとそこに行けるだろう。でも、自分の行こうとしたところにしか行けないのだ。そこに他者、いや、他者ではダメだ。近い想いを持つ仲間だな、が介在する事により、自分の幅を広げてもらえたり、自分の可能性を広げてもらえるわけだ。

豊かになるってこういう事なんじゃないかなと、僕は気づき始めている。

だから、僕らは動いている。自分たちで身銭を切って、何してるの?って思われるかもしれないけれど、今の動きが何かに繋がるように。何かに繋げるために。ゴールは経済的な成功だけじゃない。

ちなみに、もう一室はプロジェクトメンバーEat, Play, Sleep incが借りてくれていて、「次の電車が来るまで」というイベントを開催してくれていたり、「ノノノ」のブレーンを担ってくれている。

A HAMLETの造園を担当してくれているHYPER∞RELAXさがひろか)は楽園解放というイベントを毎月開催してくれている。

今となってはオーナー自身がイベントに進んで参加してくれていたり、イベントのサポートをしてくれたり、自ら芋掘りイベントを主催してくれている。ありがたい。

そして、ここにいるみんなで「周縁の集い」という集まりを毎月開催している。

何が言いたいかと言うと、準備はできましたよって事。

ハード、建物をリノベーションする事が本来の準備ではないって事だ。人の営みが生まれ出す事が準備。

僕は不動産業者として、安易に賃貸条件を変える事は好まない。一人、葛藤もした。葛藤ばかり繰り返して来た。でも、建物っていうものは人が入ってくれないと意味がないわけだ。ただの箱。

あなたに一緒に集落の再生をする仲間になって欲しい。そのためにオーナーにお願いしました。

ゴールはお金じゃない。なんて言っているのに、賃料高えじゃない。初期費用高いな。は良くない。

我々は、こういう活動に参加してもらう事にこそ、意味があると考えました。

決して安売りがしたいわけじゃない。一緒にやりたいから、ハードルを下げます。

こういう事を書くのは、全然恥じる事ではないし、強がってもいない。そもそも、経済合理性の真っ只中で消されていく集落を再生するってこういう事だよなって、そりゃ大変だよって実感しているし、それでも、ここが実に良い状態になって来たなと心のど真ん中で感じている。

ああ、仲間が増えて欲しいなって。ホントにそこ。

経済合理性の果てに、全国のまちが同じ景色になってしまうのは悲しい。近い将来、どのまちに行っても同じ景色だな、なんて言いたくない。きっと、そこにしかない歴史があって、そこにしかない生命の営みがあって、そこにしかない景色があるはずだから。

近い将来、ここで一緒になって経験を積んだ仲間が小さな灯火を持って、別の集落を再生するアクションを起こす。全国で消えゆきそうな集落が残されていく。

最終的に長くなってしまったんだけど、未来にいる僕を取り巻く未来がそんな風になっていれば、少しは豊かになったなと言える気がする。

どうか、あなたに届きますように。

※※ここからは、2023年11月頃に入居者募集をした時の物件紹介文です。※※

さて、始めよう。

こういうところでは今回のリノベーションはこういうところにこだわって直しました。とか書かないといけないのは痛いくらいにわかってる。

ごめんなさい。どうもムリだ。相変わらずの川端節でお願いします。

ここを初めて知る方は、ぜひ、以前の募集時の物件紹介文があるから、読んでから、戻って来てください。

うん、おかえり。

あっ、ちなみに、もう少し知りたいなって方は、NOTEに亀岡集落再生プロジェクトっていうマガジンがあって、そこに、このプロジェクトが始まってからの1年9ヶ月間で22本の記事を書いているから、読んできてください。

おかえり。

さて、この集落の名前は「A HAMLET」

ハムレットって聞くと、一般的には、シェイクスピアのハムレットをイメージする人が圧倒的に多いと思うんだけど、今回はその意味ではなく、村落、集落を意味する言葉。

ハムレットって言葉自体は耳馴染みはあるけれど、意外とその意味は知られていないでしょう?なので、このまちの名前の『A HAMLET』とは、ただの『とある集落』という意味になる。

2022年2月から、亀岡市の大井町並河というまちの平屋長屋が約30軒ほどある、とある集落で、まちやむら、集落の再構築、再定義をするプロジェクトを始めています。

簡単に言うと、むらづくりって言うのかな?

キーワードを紹介すると、生き物としての人間の巣、廃墟と現役の建物の廃墟寄り、土地自体を少し自然に返す、ひと、緑、まち、建物は手がかかるという前提に立ち返る。

具体的には、約30棟ほどある平屋長屋のうち、空いていた13棟程度のリノベーションを予定しています。2棟ずつの施工なのかわかりませんが、数期に分けて工事をしていく、中長期のプロジェクトです。

このプロジェクトは三年に渡り、全六期の工程で進んでいく。

三期を終えた今は、6棟の施工を終え、ちょうど折り返し地点に立つ事になる。

折角だからと、三期工事オープンハウス2日目に「SHIKIAMI CONCON」をともに作った株式会社ぬえの松倉早星氏を招き、「A HAMLET」プロジェクトメンバーのしょうきちと僕とトークイベントをする事にした。

その3日前にしょうきちから連絡があった。当日に向けて、時系列的にこのプロジェクトの振り返りをしておいて欲しいと。

なので、振り返ってみた。

僕は基本、その瞬間にちゃんと咀嚼したいと思っているからこそ、あんまり後になって、過去を振り返ったりしないんだけど、いざ振り返ってみたら、自分のPC内のフォルダや各種SNS、自分の2020年からの手帳、NOTEで言うたら約1年半で22本の記事を書いてて、そこに全部、僕らのここまでの足跡が残っていて、もう、なんだかわからんけど、泣けてきてさ、ぐっと堪えた。

まだまだけど、ここまでは来られているなって。すべての苦楽の積み重ねの先に今があるなと。この1年9ヶ月いろんな事があった。

なんだろうな。今、むらづくりをしようとなると、プロジェクトとしての純度が低かったり、上っ面ではできない。

だからこそ、プロジェクトチーム内で揉めた事もあるし、でも、みんなが諦めずにいて、今がある。

そして、これからがある。

もちろん、こういうところで、デザインやコンセプトなんかを雄弁に語る事も大事だろう。

でも、このプロジェクトでは、どんな人がプロジェクトチームにいて、どう思い、どのようにプロジェクトを進めているとかって、すごく大切な気がするんだな。

ああ、予定の六期工事を終えたら、オーナーさんと僕を除いたプロジェクトメンバーはみんないなくなってしまうのかな。寂しいな。

六期工事を言えた後も、七期、八期と続いていくといいな。毎回、メンバーも各々パワーアップしてさ。定期的に集まって、施工して、ずっと続いていくと良い。

そういうプロジェクト。そういう集落。

その頃には入居者さんも増えていっていて、その時の良い形での集落になっていると良いな。

ただ勘違いしてはいけないのは、プロジェクトチームの僕らにできる事はステージ、舞台を作る事だけなんだな。僕らは演者ではない。主役はここに入居してくれる人たちだ。

確かに最初は僕らが踊って見せる事は必要かもしれないけれど、あくまで主役は僕らじゃない。

三期工事の間に「AHAMLET」振興会と言う名の自治会のようなモノが生まれた。

月に一度、入居者たちで集まり、話をし、食事をする。

三期オープンハウスの準備や当日、こんな言い方をするのは違うかもしれないけれど、すごく助けられた。有り難かった。

まず、入居者たちが我が事に捉えてくれて、自分たちの事として、動いてくれた事がうれしかった。

オープンハウスイベントをする人間としてだけでなく、集落全体の未来を考えている人間として、とてもうれしかった。

もう、ひとつの集合体、集落として動き出し始めているなと実感させてもらった。

元々は、プロジェクトチームだけで始めたこのプロジェクトも「A HAMLET」振興会という仲間が増えて、徐々に「A HAMLET」がみんなのものになり始めているという感覚をもらえた。

そして、今回の三期工事では、あるチャレンジをした。

プロジェクトがスタートする前にしたためた企画書の中にこんな言葉があった。

①まちに、緑を土を取り戻す。そして、家の中にも、それらを浸食させる。

②今の至れり尽くせりで、もはや何もかもがあるとさえ言えるレベルの設備などが家の中にあり、昔からは進化したと言われている家と廃墟の間の限りなく廃墟寄り。廃墟から最低限、手を加えて、人が暮らせる(使える)ような空間のレベルはどこかを模索する。

③生き物としての人間の巣。

①の前半部分、まちに、緑を土を取り戻す。はプロジェクトスタート時から取り組んでいる。

今回、①の後半部分と②③に足を踏み出した。

なぜ、一期からやらなかったかと言うと、正確にはやれなかったのかと言うと、「A HAMLET」という名のどこの馬の骨ともわからないプロジェクトで、しかも、元ある集落の中で、いきなり、急激な変化をさせると、いろんな問題が起こる可能性がある。

オーナーさん、まちの人、入居希望者、まずは、柔らかい方向性みたいなモノを伝えて、見てもらう必要性がある。

その先に、より描きたい世界を描く。

ここまでは来られているという事がうれしい。

自宅やオフィスのPCや携帯の画面で写真を見て、わかった気になるのではなく、実際に「A HAMLET」に来て、感じてほしい。

ここでしか感じられない事があるから。

連絡待ってます。

どうか、あなたに届きますように。

※現在の入居者 14-16 シェアオフィス、14-17  eat,play,sleep(紙媒体、ウェブコンテンツの制作オフィス)

※※ここからは、2022年10月頃に入居者募集をした時の物件紹介文です。※※

あー、この物件紹介文を書くにあたって、いろいろ考えた。ホントにいろいろ考えた。らしくない。いつもなら、さらっと書き上げるのに。自分が関わらせもらうプロジェクトは想いが強すぎて、限られた言葉で綴るのはホントに難しい。でも、その綴られた言葉でその物件を評価されてしまう側面もあるからこそ、悩ましい。

僕は、今までにも、このプロジェクトの事を散々書いて来たから、それらの文章を頑張ってまとめていたんだけど、なんか違うなと思い、この度、書き下ろします。

今、僕が一番、書きたいと思ったのは、仲間の事でした。

さて、この集落再生プロジェクトの始まりを振り返ると、2020年10月20日に、僕が偶然、この集落の前を通りがかり、ここと出会った。そして、2020年12月7日に家主さんの家のチャイムを押したところから、すべては始まる。

まずは、家主さんに、この集落の価値を伝え、どうすれば良いかのおおまかな方向性を提案する。その言葉の重みを増させるために、僕が何者で、今までにどんな集落再生プロジェクトや施設のリノベーション、施設開発をして来たかを、実際に現場に行って、見てもらう。この辺りはまだまだ最初の一歩。

それらをしながら、裏でプロジェクトの方向性のコンセプトを練る。同時にそれを実現できるプロジェクトチーム編成をする。その時はこの集落の名前はまだない。

亀岡という立地や今の集落の現状、はたまた、これから向かう方向を頭に浮かべながら、誰とやれば、うまくいくかを考える。

ごめん、ウソをつきました。まず、最初に、今回はこいつとどうしてもやりたいなってやつがいた。いや、こいつとじゃなきゃ、やれないだろうなくらいに思っていた。ここを詳しく書くと、すっげえ長くなるから、なるべくダイジェストで。

施工は、「」を率いる、しょうきち。彼とは、ずっと前から一緒に仕事をしたかった。そして、一度、々をどっぷり体感したかった。なぜなら、こいつらは未来をつくるやつらだと思っていたから。だから、しょうきちとなら、新しい景色が描けると思ったし、今も思っている。また、集落再生には、既存の住人さんとのコミュニケーションも非常に大事だ。その人たちを知らないまま、集落を再生する事なんてできないからね、彼とならできると思った。そういうとこ、すっげえ大事にするから、彼は。ものづくりと向き合うストイックでアーティスティックな部分や周りを巻き込むパフォーマンス的に見える部分がすごく魅力的なところだから、どうしても、そこばかりが注目されがちだけど、彼の本質はそこじゃないと思っている。愚直なまでに、プロジェクトと向き合う。施主と向き合う。プロジェクトメンバーと向き合う。そのプロジェクトの建物、そのプロジェクトの建物があるまち、そのプロジェクトの建物があるまちの歴史、そのプロジェクトの建物があるまちにいる人たち、そのすべてと向き合う。彼の素晴らしいところはそういうところだと思っている。そりゃ、彼も棟梁だからさ、守らないといけないやつらもいるから、お金の事も考えてはいるだろう。でも、彼の仕事っぷりは、そんな事を忘れさせるくらいピュアで、美しいんだよ。おっと、長くなった。

そして、他のメンバーもすぐに思い浮かんだ。

今回の集落再生にはひとつの大きなポイントだと思っていた造園。これを頼んだのが、「HYPER∞RELAX」という屋号で活動しているさがちゃん。もちろんだけど、ここでは、普通の造園なんて求めていなくて、もっと原始的な緑。彼女が過去に携わった施設の緑が大好きで、満を持して、今回、オファーした。彼女がいてくれたおかげで「A HAMLET」に楽園(共用庭&焚火場)が誕生した。会った人にはわかると思うけど、さがちゃんの持つ空気感はとても素敵で、人?緑?自然?みたいな命なんだな。彼女がこれからも、この集落に増やしてくれるであろう緑と彼女がいてくれる事によって、生まれる空気感を僕らも楽しみにしている。

最後に、設計、施工もでき、僕ら個性しかないメンバーをうまくコントロールしてくれそうだと思った「Lunch! architects」のワダカンジ。もちろん彼の職能の部分に期待して、というのもあるが、プラスアルファで、全体を俯瞰で見て、時にスライムのように、家主さんを含む僕らプロジェクトメンバーの間を埋めてくれたり、バランスを取ってくれたり、プロジェクトの抜け落ちてしまいそうな隙間に気付いてもらったり、という部分を彼なりのやり方でやってくれると期待して声をかけさせてもらった。そして、何より、僕は彼の和田節とも言える彼独特の空気感が好きだし、来年に待っている三期工事から再来年の六期工事まで、彼とやれる事はまっだまだあると思っている。

それぞれの化学反応をぼんやり想像してみたり、そのひとりひとりのピースを脳内で組み合わせて、全体を眺めたときの座組が、とても、しっくり来た。そして、このメンバーのうちの誰が欠けてもいけないと思ったし、きっと、それぞれがその時に持っている自分の能力を超えた、それぞれの能力の先にある可能性の部分で踊らなければいけないだろうけど、そこまで含めて、やれると思った。だから、僕は早い段階で、この4人で進めたいなって勝手に決めてワクワクしていた。

そして、それぞれにプレゼンをして、一緒にやってくれる?って口説くターンが来るわな。ここがすごく大事。面白くねえなって言われたら、終わりだからね。だから、すごく考えた。何だったら、ここを越えられたら、プロジェクトはうまくいくぐらいのレベルのメンバーだと思っていたから。

ちゃんと一人一人、時間を取って、緊張しながら、口説かせてもらった。

その結果、家主さんを含むみんなが面白そうだと乗っかってくれたんだ。

良かった。自分がこの人とやりたいと思ったメンバーが一緒にやりたいって言ってくれるのは、とても、うれしい事だ。

喜んでる僕の心をよそに、その裏では、お金の算段もしなければいけない。次は僕の頭よ働け。だ。

家主さんのお抱え税理士さんは、お年を召された方で、こういうのをした事がなくて、家主さんが相談をしても、立て板に水の状態。だから、まず、税理士さんを紹介して、チェンジしてもらった。そこから、25年収支計画を税理士さんに協力してもらいながら、作った。初めて作った。僕の提案するプランは、大体、短くて3年、長くても7年とかで投資を回収してもらうからね。でも、今回、返済期間の家主さんの実入りを考えると、25年だったんだな。

はい、作りました。

それで、いよいよ、ゴーだな。

2022年2月、ついに、一期工事の二棟の工事が始まる。集落に住み込みで一緒に作った。

純度と関係性が大事だからね。

そして、ついに、この頃、プロジェクトチームの最後のメンバーが決まる。

A HAMLET」のクリエイティブディレクション・広報を担当してくれている「Eat,Play,Sleep inc.」彼らは「A HAMLET」の一棟に事務所を構えてくれている。当初は、この職能に関しては、公募したんだけど、運命的な流れで、彼らにお願いする事になった。ボスは、堤くんだ。僕は、彼が「SHIKIAMI CONCON」に入居してくれていた頃から、彼に興味があった。その時から、ずっと、一緒に何かやりたいと思っていた。ついにのタイミングが来たんだ。ちなみに、今、堤くんは台湾に行っちゃってて、今、その事務所を実質守っているのは岡安さん。彼女は今、自分たちの居場所を整え、その場所をより良くするために頑張ってくれている。彼らを筆頭にした仲間たちが、僕らのエモすぎるバイブスを絶妙に抽出し、世に放ってくれている。そんなウェブサイトがこちらだ。→「A HAMLET

2022年5月くらいに一期工事分の二棟が完成する。その頃には、有り難い事に、募集をしていないにもかかわらず、二棟とも借りてくれる人が決まっていた。

2022年7月中旬、二期工事の二棟の工事が始まる。またまた、住み込みで一緒に作る。

2022年9月末に完成し、2022年10月7,8日にオープンハウスをした。

イマココ。

僕がいろんな事をいろんな媒体で書いています。

もし、あなたが、この集落に、このプロジェクトに興味を持ってくれたとしたら、とりあえず、noteを読んでほしい。リンクを貼っておきます。今、見たら、このプロジェクトの記事を17本も書いていました。びっくり。まだ、二期工事だぜ。まぁ、ゆっくり読んでみてよ。そこにすべては置いて来たから。

亀岡集落再生プロジェクト

・・・・・・・・・・。

おかえり。

何か、他に僕に言える事はあるかな?

ないよね。

そもそも、この集落ができてから、どれくらい経つんだろうな。

生まれてから、時は経っているんだけど、2022年7月から再生が始まったから、この集落は、例えると、今、赤ちゃんのような状態。

だからさ、一緒に育てようよって僕は言いたい。

ちなみに、この集落のゴールなんて、僕らにも見えていない。だからこそ、僕らは、あなたに対して、大きい事は何一つ言えない。

それは決して悪いコトじゃなくて、見えてない未来をさも見えているかのように語る人多いじゃない?

一見、僕らは、時にふざけたり、好き勝手、自由にやっているようにも見えるかもしれないし、無責任にやっているように見えるかもしれないけど、完全に責任を背負っている。

この集落の未来に対して。

だからこそ、僕らは決して諦めない。

この集落も、家主さんも、プロジェクトメンバーも、「A HAMLET」の入居者さんたちも、現場に手伝いに来てくれている人たちも、元からいる住人さんたちも、ここに来てくれるかもしれないあなたも。

あー、書き下ろし、長いよ。長いね。

もちろん、建物のデザインとか、どうやって作って来たかやこの集落再生プロジェクトのコンセプトとかも大事なんだけど、こんな奴らがやってんだなって思って、興味を持ってくれた人がいてくれたら、うれしいです。

こんなご時世に、こんな奴らもいるんだよ。

何が言いたいかって言うとね。

とりあえず、見に来てほしい。

今、現場は動いていないけれど、ここで、みんなが過ごして、みんなで作った空気が、そこに残っているからさ。

来て見て触れて感じてほしい。

きっと、すべてはそこから始まるから。

この文章が、そのきっかけになる事を祈っています。

※現在の入居者 14-17  eat,play,sleep(紙媒体、ウェブコンテンツの制作オフィス)、14-16 オフィス

施主:株式会社roof planning
施工:野崎将太
樋口 侑美、Yuta Asota Matsuura、Yuki Mizoguchi、上村 一暁、たじま こうき、寺井 俊裕、田中芳明)、ライ電工(武藤 頼次郎)
設計・施工管理・施工:Lunch! architects和田寛司
造園:HYPER∞RELAXさがひろか
企画、仲介、管理:株式会社川端組。(KAWABATA channel
クリエイティブディレクション・広報:Eat, Play, Sleep inc
ロゴデザイン:吉勝制作所
Webデザイン:岡本 昌太
編集チーム:池尾 優/阿部 光平/鼈宮谷 千尋/稲田 ズイキ/藤山 亜弓/田中 帆夏/川地 真史/田島瑞希

special thanks to:Hikawa Shino、Hirose Atsuko、Kanami Kawasaki、Keiko Kimura、Mitsumasa Sakamoto、Mizuki Kobayashi、Riko Yokoo、Ryo Chang Hirata、Ryota Kurokawa、Seri Hano、Ushiwo Tsukioka、Yohei Yamamoto、Yoshiyuki Uchibori、角 直弘、梶田 慎也、橋本翔、江口 琴理、細井千聖、秀平 琢磨、中野脩平、田中 圭、徳永 絵里、福嶋 一晃、並河 杏奈、堀田 樹、本上 潤一、野村 かりん、國重 裕太、15nosora、m.o.mao、oo8sakana。

物件名 A HAMLET
タイプ 14-7/13-17/14-11/14-9
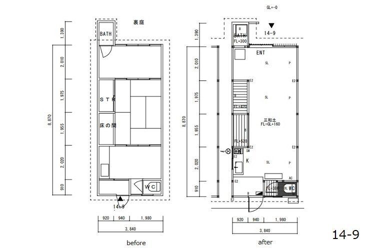
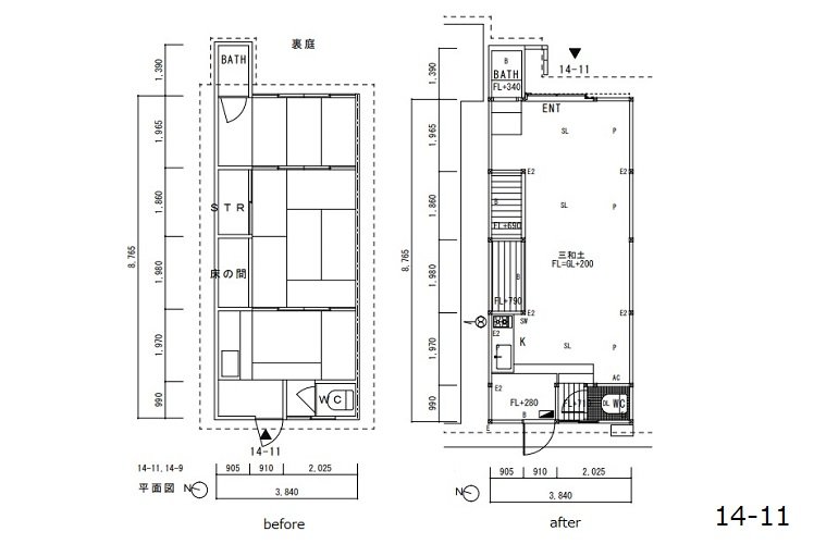
面 積 (14-7)約35.16㎡(約10.64坪)/(13-17)約36.18㎡(約10.94坪)+外部スペース約14.19㎡(約4.29坪)/(14-11)約36.60㎡(約11.07坪)/(14-9)約36.55㎡(約11.05坪)
家 賃 (14-7)52,800円(内税10%、4,800円)/(13-17)59,400円(内税10%、5,400円)/(14-11)52,800円(内税10%、4,800円)/(14-9)51,700円(内税10%、4,700円)
共益費 2,200円(内税10%、200円)
礼 金
敷 金
保証金
更新料 再契約料 (14-7)26,400円(内税10%、2,400円)、(13-17)29,700円(内税10%、2,700円)、(14-11)26,400円(内税10%、2,400円)、(14-9)25,850円(内税10%、2,350円)/定期建物賃貸借契約2年
駐車場 5,000円/月 ※空き確認要
所在地 亀岡市大井町並河一丁目14-7、13-17、14-11、14-9
交 通 JR山陰本線 並河駅 徒歩8分
構 造 木造かわらぶき平家建
完 成 築不詳
入居時期 即入居可
取引態様 仲介(※成約の際、仲介手数料として成約賃料の1ヶ月分(税別)が必要になります。)
備 考 用途:オフィス、アトリエ、ショップ、ギャラリー、もしくは、それらと住居を兼ねるもの。

設備:2口ガスコンロキッチン、トイレ、浴室(13-17、14-9は浴槽あり、14-7、14-11はシャワーのみ)、エアコン、室外洗濯機設置可

再契約手続料:33,000円(内税10%、3,000円)
火災保険加入要(業種等により金額は変動)19,000円/2年
保証会社との保証委託契約要(初回:月額合計の100%、1年毎:月額合計の10%(但し最低更新保証委託料10,000円))
口座振替手数料:330円(内税10%、30円)/月
退去時ハウスクリーニング代:27,500円(内税10%、2,500円)

当建物が既存の集落内にある事をご理解いただき、近隣との協調を基本とし、まちづくりに興味があり、積極的にコミュニティづくりに参加していただける方を募集しています。

※今回の募集区画に関しまして、先着申込順ではなく、お店の種類や職種、職能、また、集落やコミュニティへの貢献や還元を考慮し、審査をさせていただいた上で、お返事という流れになります。
情報更新日 2025年10月31日