HOME > BLOG > KAWABATA channel > Property Search > RENT > イズミシキブライトハウス。
2026-03-24
ここでお会いするのは、お久しぶりですね。
さてさて、今回はJR山陰本線花園駅近くの戸建リノベ物件のご紹介です。
この建物が建てられたのは1972年5月の事。
1970年代というと、 団塊の世代が20代後半〜30代になり、核家族化が進んだことで「持ち家」を求める需要が爆発し、団塊の世代に向けられた住宅供給全盛の時代。
そんな頃に建てられた建物。当然、役割は一旦終えています。
これからも、そんな建物たちが世の中に溢れていくのだろうな。
京都で言うと、京町家っていうのはブランド物だから、少なからず、一定数の需要があると思う。
でも、この時代に大量に造られた建物たちには行き場が、未来がない。
かわいそうじゃない?
勝手に生み出されて、役目が終わったら、はい、終了?一方的に解体するの?
こんな建物でもなんとかなるのかな?もう一花咲かせてあげたいな。
そんな想いで、この度、オーナーから不動産屋、工務店へバトンリレーされ、リノベーションされました。
昨今、ご存知の通り、リノベ工事にかかる材料費、施工費、人件費が爆上がりしており、ぬるい工事をしていたら、投資額と賃料収入のバランスが合わない。
だからと言って、建物が自然死するのを待つの?
一生に一回の買い物?もうそんな考え方も古いのだろうけど、自分で不動産を購入して、改装して、自分たちでずぅーっとお住まいになられる方はそれ相応の改装費をかけられる。
だけどもだけど、賃貸はそうはいかないよね。いただける賃料にも上限がありますので。はい、収支のバランス。
賃貸物件は難しいと言われる所以。
はい、結論。予算内で、できる限り最良の工事を施しました。ぜひ、元の状態も見てほしいくらい。
元々の姿も随所に残し、今という時代の最善を尽くし、未来の暮らしに繋ぎました。
左手で過去と手を繋ぎ、右手で未来と手を繋ぎ、今という瞬間に最善を尽くして生きるってこういう事だよ。
いつの時代もそうやって、その時代時代の最善の積み重ねで未来は紡がれていく。
そうそう、照明はオリジナルなのです。ここのために生み出されました。
ああ、照明に拘ったから、タイトルがライト?ハウス?
ライトに拘ったから、ライトっていうのもあるけど、そもそも、ライトハウスとは「灯台」という意味なのです。ダブルミーニングだ。そこまでダブルか?はい。ちなみにイズミシキブはこの建物のある町名なのです。和泉式部町。
って事で、イズミシキ、ブライトハウスでもないのです。ブライトは英語で「明るい」「輝いている」「鮮やかな」などを意味する形容詞ですよ。意味的にはいけそうだけどね。
もとい、AIさんによると「灯台」とは、海や岬に立ち、光で船に航路を教える「道しるべ」や、暗闇を照らす「希望」の象徴として用いられるそうです。
おい、全部言うなよ。さすがだな、AI。
さっきも書いたけどさ、これから、団塊世代が汗水流して購入した、すなわち僕ら団塊Jr世代が育った家たちが世の中に溢れ出てくるのだよ。解体さえされなければね。
僕らの世代としては放っておけるわけないよね?僕らを育ててくれた家たち。
今の時代にもう一度、新たな価値を付けて、再生してあげないとだよ。
ちなみに、不動産には売買と賃貸と解体しか、今のところ行先はないわけだな。
じゃあ、僕は京都一ファンキーな賃貸担当大臣として、そんな建物たちのセカンドキャリアを開拓していくしかないよね。
何が言いたいかというと、この建物自体が1970年代に建てられた建物たち、ひいては、その所有者さんたちの、これからここに住まう方たちの希望の灯台になるというわけだ。
ええ、京都市の右京区太秦和泉式部町に希望の灯台が建ちましたとさ。
ああ、イズミシキ、ブライトハウスって読む人、一定数いるんだろうな。
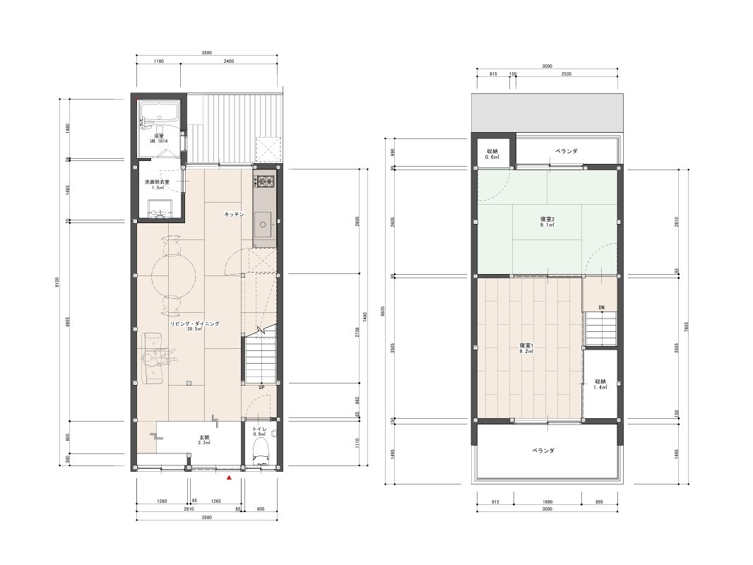
| 物件名 | 太秦和泉式部町の家 |
|---|---|
| タイプ | 戸建 |
| 面 積 | 52.24㎡(1階28.75㎡、2階23.49㎡) |
| 家 賃 | 90,000円 |
| 共益費 | - |
| 礼 金 | 135,000円 |
| 敷 金 | 90,000円 |
| 保証金 | − |
| 更新料 | 再契約料 45,000円/定期建物賃貸借契約2年 |
| 駐車場 | 無 |
| 所在地 | 京都市右京区太秦和泉式部町3番地43 |
| 交 通 | JR山陰本線 花園駅 徒歩8分 |
| 構 造 | 木造瓦葺2階建 |
| 完 成 | 1972年5月完成/2026年3月リノベーション |
| 入居時期 | 即入居可 |
| 取引態様 | 仲介(※成約の際、仲介手数料として成約賃料の1ヶ月分(税別)が必要になります。) |
| 備 考 | ハウスクリーニング代:44,000円(内税10%、4,000円) 火災保険料:19,000円/2年 再契約手続料:33,000円(内税10%、3,000円)/2年 保証委託料:月額合計の120%/初回のみ or 月額合計の50%/初回、10,000円/1年 オフィス、サテライトオフィス兼社員専用宿泊施設、ショップ(業種により)、サロン、アトリエ(音、匂いが出るものは不可)、 オフィス、ショップ(業種により)、サロン、アトリエ兼住居(音、匂いが出るものは不可)などの用途相談可 ※上記の用途の場合は、別途、賃料、礼金、再契約料などに消費税がかかります また、火災保険料、保証委託料が事業用プランになります。 |
| 情報更新日 | 2026年3月10日 |