HOME > BLOG > KAWABATA channel > Property Search > RENT > 例のビル。
2026-04-30
2026年5月2日、商談中。
例のビル、新たな区画の募集です。
京都にお住まいの感度の高い皆様なら、
いや、京都にお住まいじゃなくても、ご存じかもしれない。
もはや、皆様、ご存じのはずの例のビルです。
何なら、物件の紹介文はここまででもいいくらいさ。
五条新町角に建つビル。その名も、つくるビル。
築50年の4F建てのビルをリノベーションした集合アトリエビル。
いろんな「つくる」が集まるビル。
2012年のリノベ完成当時、そのすべてが新しかった。
2012年のリノベ完成当時、僕はそんなレベルに達していなかったから、存在すら知らなかったけどね。
今なら、言える。
0→1、その崇高さったらないよ。
ここが生まれる前までは、ものづくりの街と言われるはずの京都に、そんな市場すらなかったんだから。
確かにね、物件オーナーさん自ら企画して、実行されてるプロジェクトは少ないながらもあった。
でもね、第三者がマーケティングして、お金の話もちゃんと辻褄を合わせて、
物件オーナーさんに提案して、ビジネスモデルとして、ものづくりに特化したアトリエビルとして実現したのは、京都で初めてなんじゃないかな。
初めてがそんなに大事な事なの?借りる側からしたら、関係なくね?
そんな声もあるかもしれない。
少なくともね、不動産業界にいる僕に取っては、誇らしかったし、嬉しかった。
できた当時は知らなかったからこそ、遡って、逆に一層そう思えた。
自分が思いもよらなかった時から、こんな事を企画して、
実践する人がいて、生み出される物件があるんだって。
こんな事が可能なんだって。
一旦、役目は終えたよね。って言われてしまってたビル。
スクラップ&ビルドを繰り返してたら、絶対に残っていなかったであろう
こんな素敵な建物に、もう一度意味を与えて、再び生命を宿らせる事ができるんだって。
リノベーションから、14年くらいかな?
街並み、すなわち、ハードは変わらないのに、
中身、すなわち、ソフトやコンテンツが変わって、街が変わる。
歴史ある街、京都が目指すのは、そういうとこなんじゃないかな?
角が立つかもしれないけど、愛があるから言うね。
どこの都市にでもある、使い捨ての建物ばっか建ててる場合じゃないよ。
京都だからって、町家風の建物やフェイクの町家っぽい建物ばかりを増やすべきじゃないよ。
観光都市ってブランドにあぐらをかいて、何のイズムもない軽薄な宿泊施設を作ってる場合じゃない。
京都の人が、京都にいる人が、その価値を守らなかったら、誰が守ってくれるんだよ。
僕らは、ここで今、生きている。
世界に見せるべきは、現在進行形の僕らの生き様だろ?
過去の産物じゃない。
過去の遺産だけじゃない。
このビルを先頭にして、こんなコトが京都中で起きたら、最高だ。
多くの人がこういうコトができるんだって、気づいてくれたら、最高だ。
そして、こんなビルが現役で使われていて、そこに入れる事は、ホント幸せなコトだよ。
もし、まだ、あなたがここを知らないんだとしたら、
もし、あなたが生きているうちに、ここの存在の意味、価値に気づいてくれる日が来るのなら、
一日も早く、その日が来てほしい。
そんなコトを切に願う。
つくるビルウェブサイト→http://www.tsukuru-bldg.com/
| 物件名 | つくるビル |
|---|---|
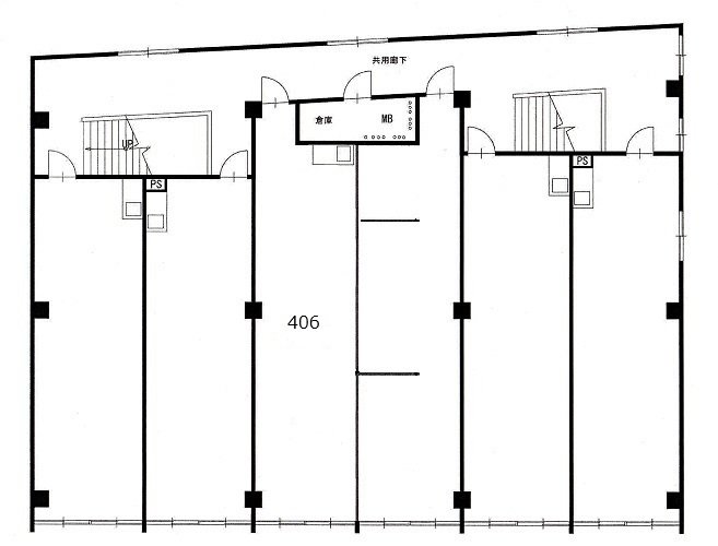
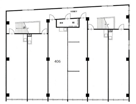
| タイプ | 406 |
| 面 積 | 約34.5㎡(約10.44坪) |
| 家 賃 | 85,800円(内税10%、7,800円) |
| 共益費 | 7,700円(内税10%、700円) |
| 礼 金 | - |
| 敷 金 | 78,000円 |
| 保証金 | - |
| 更新料 | - |
| 駐車場 | 無 |
| 所在地 | 京都市下京区五条通新町西入西錺屋町25番地 |
| 交 通 | 地下鉄烏丸線 五条駅 徒歩5分 |
| 構 造 | 鉄筋コンクリート造4階建 |
| 完 成 | 1962年5月完成、2012年10月リノベーション |
| 入居時期 | 即入居可 |
| 取引態様 | 仲介(※成約の際、仲介手数料として成約賃料の1ヶ月分(税別)が必要になります。) |
| 備 考 | 退去時エアコン等クリーニング代 27,500円(内税10%、2,500円) 駐輪は自転車(1戸1台)のみ 550円(内税10%、50円)/月 再契約手続料 42,900円(内税10%、3,900円)/定期建物賃貸借契約2年 損害保険(借家人賠償責任担保特約保険)加入要 保証会社との保証委託契約要(初回:月額合計の100%、1年毎:月額合計の10%(下限10,000円)) エアコン、流し、共用トイレ |
| 情報更新日 | 2026年4月30日 |